Thảo Điền quận 2
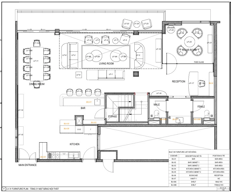
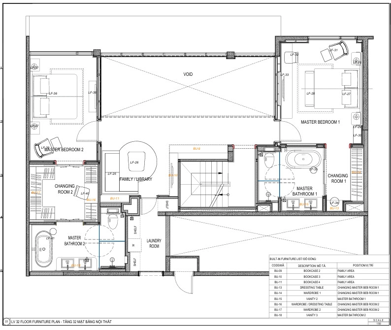
Bán căn hộ Penhouse 407m2 gồm 2 tầng, đầy đủ nội thất dự án Q2 Thảo điền, view sông thảo điền giá 75 tỷ đồng.
Diện tích sử dụng: 407,33 m2 (3 tầng), nội thất đầy đủ.
Mặt bằng



Diện tích trên SPA: 266.49m2 (tầng 1 và tầng 2)
Phí quản lý: 25.000VND/m2 (chưa VAT)
Phí đậu xe hơi: 2.000.000VND/xe/tháng (chưa VAT)
Giá bán: 75.000.000.000VND (đã bao gồm VAT và phí bảo trì)
Phương thức thanh toán:
Thanh toán lần 1: 5% giá trị hợp đồng trong vòng 7 ngày làm việc kể từ ngày nhận được Thông báo đặt cọc.
Thanh toán lần 2: 95% giá trị hợp đồng trong vòng 14 ngày làm việc kể từ ngày nhận được Thông báo ký kết hợp đồng mua bán.
Nội thất đầy đủ





Thông tin chi tiết về căn hộ quý khách hàng liên hệ :
Ngọc Mai 0914341830
Đăng ký tư vấn
Cư dân The Classia được thừa hưởng nhiều tiện ích hiện đại, bên cạnh đó thời gian di chuyển dễ dàng và nhanh chóng, mang đến cho cư dân một cuộc sống đầy đủ các tiện nghi
Mặt tiền Đường Võ Chí Công, Phường Phú Hữu, Quận 9. TP.HCM
Khu Đô Thị biểu tượng Downtown mới của Tp Hồ Chí Minh dự án được phát triển, kiến tạo bởi Masterise Homes
Phường An Phú, Quận 2, TP.Thủ Đức, Thành Phố Hồ Chí Minh.
The Emerald 68 là căn hộ cao cấp tại TP Thuận An được đầu tư bởi liên danh Lê Phong và Coteccons, mang khát vọng kiến tạo cuộc sống sung túc, viên mãn dài lâu, tạo lập nên một nơi đáng sống
68 Đường Vĩnh Phú 16, Phường Vĩnh Phú, Thành phố Thuận An, Bình Dương
Căn hộ cao cấp Eaton Park có quy mô 3,8ha tọa lạc tại 166A đường Mai Chí Thọ,P.An Phú,TP.Thủ Đức với vị trí đa kết nối, mang đến cho khách hàng một Tuyệt Tác Sang Trọng - Nâng Đỉnh Sống Sang
Mặt tiền Mai Chí Thọ, An Phú, TP Thủ Đức
Lumiere Riverside cụm căn hộ cao cấp đẹp nhất thảo điền, Tp.Thủ Đức, Thiết kế nhiều cây xanh mang lại không gian sống đẳng cấp
628 mặt tiền đường Xa Lộ Hà Nội, Phường An Phú, Quận 2, TP. HCM
Artisan Park Tọa lạc tại khu trung tâm của thành phố mới, là điểm sáng của Bình Dương, một cộng đồng thương nhân và cư dân sôi động, tràn đầy sức sống,
Lô 1, G9, K5, Hòa Phú, Tp.Thủ Dầu Một, Tỉnh Bình Dương,
Quý khách điền thông tin bên dưới chúng tôi sẽ liên hệ trong thời gian sớm nhất